


| 物件名 | 福岡県築上郡 吉富町楡生(ににゅう)中古住宅 | ||
|---|---|---|---|
| 物件所在地 | 築上郡吉富町楡生 | ||
| 交通機関 | JR日豊本線吉富駅徒歩21分/車で5分(1.5㎞) 吉富町巡回バス「いまとみクリニック前」バス停徒歩1分(80m) |
||
| 小学校区 | 吉富小学校 | 中学校区 | 吉富中学校 |
| 土地面積 | 658.06 ㎡ | 坪数 | 199 坪 |
|---|---|---|---|
| 地目 | 宅地 | 区画数 | 1 |
| 駐車場 | 有(敷地内) | 駐車可能台数 | 1 台 |
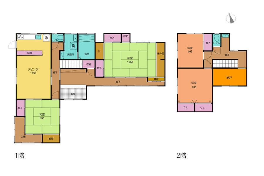
| 建物面積 | 179.64 ㎡ | 坪数 | 54.3 坪 |
|---|---|---|---|
| 建物階数 | 2階建て / 1,2階部分 | 各階面積 | 1階129.74㎡/2階49.90㎡ |
| 建築年月日 | 平成10年2月 | 建物構造 | 木造瓦葺 |
| 間取り | 4SLDK | 主要採光面 | 南西 |
| 給湯設備 | あり | トイレ | 簡易水洗 |
| 上水道 | 市水道(公営) | 排水 | 側溝 / 下水道(公営)繋込可 |
| ガス | プロパンガス | 電気 | あり |
| その他設備 |
ガス給湯、ガスコンロ付、システムキッチン、トイレ 2ヶ所、トイレに手すり、トイレに窓、浴室に窓、洗面脱衣所、シャワー付き洗面化粧台、洗面所に窓、下駄箱、玄関チャイム、インターホン、押入れ、クローゼット、勝手口、室内洗濯機置場、専用庭、
|
||
| リフォーム状況 | - | ||
| 権利形態 | 所有権 | 再建築 | 可 |
|---|---|---|---|
| 都市計画 | 非線引き区域 | 用途地域 | 指定なし |
| 建ぺい率 | 60 % | 容積率 | 200 % |
| 接道状況 | 南東側県道(幅員約13m)に50m接道 | ||
| 私道負担 | - | ||
| セットバック | - | 地勢 | 平坦 |
| 国土法 | - | 法令等 | ■景観条例(京築広域景観計画) ■今吉向遺跡内 |
| 現況 | 所有者居住中 | 取引形態 | 媒介 |
| 引渡 | 相談 / - | 引渡方法 | 現況 |
| 別途金 | ■仲介手数料 ■登記費用 ■下水受益者負担 143,000円(現在、所有者様が分割支払い中) |
||
|---|---|---|---|
| 備考 | ■倉庫未登記。モルタル倉庫→登記予定 | ||
| 更新日 | 2026年 1月 22日 | 管理番号 | I-212 |
