


| 物件名 | 宇佐市 院内町副中古住宅(2K) | ||
|---|---|---|---|
| 物件所在地 | 大分県宇佐市院内町副字大鍛冶屋550番地ほか | ||
| 交通機関 | 大交北部バス『下副』より徒歩3分(220m) 院内ICより車で9分6400m |
||
| 小学校区 | 院内中部小学校 | 中学校区 | 院内中学校 |
| 土地面積 | 707.32 ㎡ | 坪数 | 213.9 坪 |
|---|---|---|---|
| 地目 | 宅地-畑 | 区画数 | - |
| 駐車場 | 有(敷地内) | 駐車可能台数 | 3 台 |
| 建物面積 | 50.06 ㎡ | 坪数 | 21 坪 |
|---|---|---|---|
| 建物階数 | 1階建て / -階部分 | 各階面積 | - |
| 建築年月日 | 昭和44年11月5日 | 建物構造 | 木造コンクリートブロック造瓦葺 |
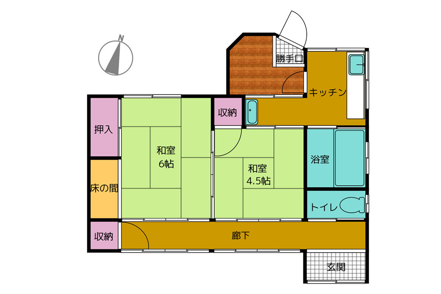
| 間取り | 2K | 主要採光面 | - |
| 給湯設備 | あり / ガス | トイレ | 水洗 |
| 上水道 | 市水道(公営) | 排水 | 下水道(公営) |
| ガス | プロパンガス | 電気 | あり |
| その他設備 |
ガス給湯、バス・トイレ別、シャワー、洗面台、
|
||
| リフォーム状況 | - | ||
| 権利形態 | 所有権 | 再建築 | 可 |
|---|---|---|---|
| 都市計画 | 都市計画区域外 | 用途地域 | - |
| 建ぺい率 | - % | 容積率 | - % |
| 接道状況 | 南側里道幅員4mに約25m接道、北側幅員1.5 m里道に15 m接道、西側幅員2.5 m里道に25m接道、東側幅員3 m里道に30m接道 | ||
| 私道負担 | - | ||
| セットバック | - | 地勢 | 傾斜地 |
| 国土法 | - | 法令等 | ■惠良川洪水浸水想定区域 ■農地法…地目が農地の部分に関しては農地法の申請が必要です。 (費用買主負担) |
| 現況 | 所有者居住中 | 取引形態 | 仲介 |
| 引渡 | 相談 / - | 引渡方法 | 現況 |
| 別途金 | ■仲介手数料 ■登記費用 |
||
|---|---|---|---|
| 特例手数料 | 本物件は『低廉な空き家等』に該当します。そのため、仲介手数料については別途規定があります。 詳細はこちらのページをご覧頂くか弊社へお問い合わせください。 |
||
| 備考 | - | ||
| 更新日 | 2026年 2月 27日 | 管理番号 | I-218 |

| 周辺施設 | ■院内中部小学校まで徒歩27分(2.0km) ■院内中学校まで徒歩25分(1.9km) ■東院内郵便局まで徒歩6分(450m) ■マルミヤストア院内店まで徒歩11分(850m) ■道の駅院内まで車で3分(1.4km) |
||
|---|---|---|---|
